16
$11 Rent
Listed 3 hours ago
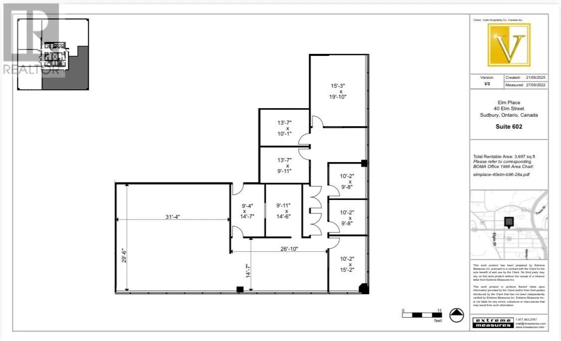
10 ELM Street Unit# 602
· 0
· 0.0
· 0
· -
Key Facts
Key facts for 10 ELM Street Unit# 602
Property Type
Commercial, Commercial Mix
Parking
Garage: No, 0 parking
MLS #
2125311
Size
-
Basement
-
Listed on
-
Lot size
-
Tax
-
Days on Market
-
Year Built
-
Maintenance Fee
-
Description
Located in the heart of Downtown Sudbury, Elm Place is a premier, high-traffic destination offering excellent visibility, a diverse tenant mix, and convenient access for both customers and employees. The Elm Place Office Tower offers Class A office space which only a few availabilities remaining ran...ging from 2,235-4,121 square feet. Elm Place features Sudbury’s largest downtown parking facility, which has undergone significant upgrades. The three-story garage offers 950+ stalls, including ground-level, covered, and upper-level parking. The building has also undergone extensive renovations, boasting luxury finishes throughout its common areas, such as marble flooring, elegant cornice details, accessible spaces and more. On-site amenities enhance both tenant and visitor experiences, including a food court, gym, movie theatre, spa, and the Radisson Hotel. Conveniently accessible from Elm Street and Ste. Anne Road, this prime location benefits from a daily traffic count of 28,847 vehicles and foot traffic of approximately 5,000 people per day, ensuring exceptional exposure and accessibility. This move-in ready 3,697 sq. ft space features a reception, boardroom, open space (ideal for cubicles or a collaborative space) and multiple offices surrounded by large windows that provide tons of natural light. Secure your space in one of Sudbury’s most dynamic commercial hubs! Contact us today for leasing details. (id:10452)
Similar Properties (No results)
Listing courtesy of: RE/MAX CROWN REALTY (1989) INC., BROKERAGE (SUDBURY)
This REALTOR.ca listing content is owned and licensed by REALTOR® members of The Canadian Real Estate Association.